Back

4 Bedroom House For Sale in Pretoria

Pretoria
R 4950000
RunningCosts Bond
Costs
Property Type House
Erf Size 1342 m2
Levies R 1800
Listing Date February 09, 2026
Floor Size 347 m2
Rates and Taxes R 2000
Details
Map
Street view
Local info

Property description

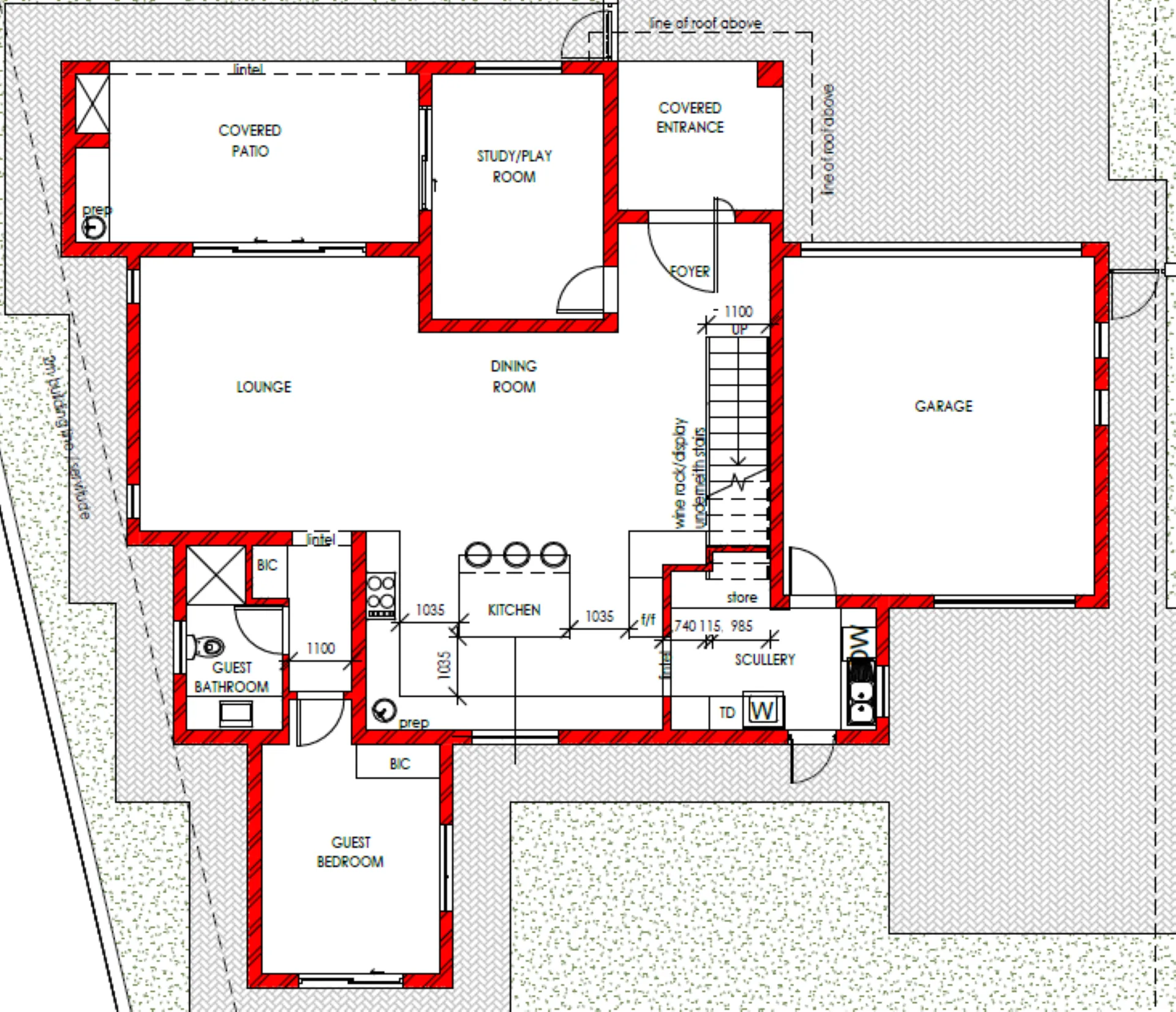
This beautiful 4-bedroom home in the newly developed Roodepark Eco Estate combines style, functionality, and modern living. Enter through the covered entrance into the foyer, with stairs to the upper level conveniently located to the left.

The spacious, modern kitchen overlooks the dining room and lounge, featuring a center island that doubles as a breakfast nook, as well as a separate scullery with direct access to the double garage. To the right of the kitchen is a guest bedroom with a separate guest bathroom, and just outside the bathroom door is a handy storage cabinet. From the lounge, step out onto the covered patio with a built-in braai, prep counter, and prep bowl, overlooking the front garden. The dining room leads to a flexible playroom or home office.

Upstairs, the landing opens to a pajama lounge, perfect for family relaxation. The main bedroom is generously sized and features a dressing area, an en-suite bathroom with a bathtub, shower, and double vanities, and shares a balcony with the second bedroom. The second bedroom also enjoys access to this balcony, while the third bedroom has its own private balcony, providing light and outdoor space for all. A separate bathroom services the other upstairs bedrooms.

This home is thoughtfully designed for comfortable family living, offering both private and shared spaces, modern finishes, and a seamless flow between indoor and outdoor areas.

At Matchmaker Realty we welcome you to book an exclusive viewing of this beautiful home. Matchmaker Realty is the Industry leader in Matching Buyers to Homes! We pride ourselves with a full, professional service from the initial viewing to the property handover and beyond with an 'emphasis' on after-sales service. We work with the best Bond Originators who will streamline the process of a bond approval with a high success rate.

We look forward to 'Matching' you to your dream home!

  • Study
  • Store Room
  • Patio
  • Security Features
  • Pets Allowed

Request property details from Matchmaker Realty

Terms of use
Type of enquiry
Phone Agent
Message Agent